无障碍浏览
长者模式
本站IPV6
瑞丽市政务服务管理局
返回栏目首页
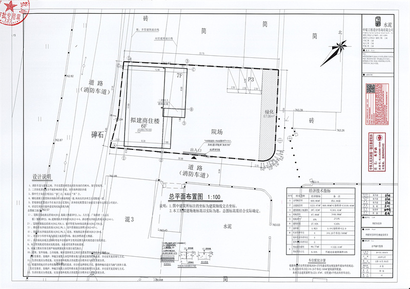
瑞丽市行政审批局关于瑞丽市汤绍省、赵兴辉商住楼建设项目建设工程规划许可证(变更)批后公布
浏览量:633 作者: 日期:2025/10/24
[附件:
瑞丽市行政审批局关于瑞丽市汤绍省、赵兴辉商住楼建设项目建设工程规划许可证(变更)批后公布
]
文章来源:
瑞丽市行政审批局
上一篇:
瑞丽市行政审批局关于瑞丽市傣瑞商业广场建设项目规划批前公示
下一篇:
瑞丽市行政审批局关于瑞丽沿边产业园姐告东片区道路及配套基础设施改扩建工程项目建设工程规划许可证(变更)批后公布
主办单位:瑞丽市人民政府办公室
滇ICP备13000534号-1
滇公网安备 53310002000503号
联系电话:0692-6995799 政府网站标识码:5331020001 地址:瑞丽市新建路2号 邮编:678600