无障碍浏览
长者模式
本站IPV6
瑞丽市政务服务管理局
返回栏目首页
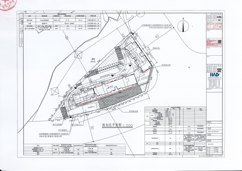
瑞丽市行政审批局关于瑞丽市正心和居建设项目(工程变更)建设工程规划许可证批后公布
浏览量:283 作者: 日期:2026/3/11
[附件:
瑞丽市正心和居建设项目(工程变更)建设工程规划许可证
]
文章来源:
瑞丽市行政审批局
上一篇:
瑞丽市行政审批局撤销行政许可文书送达公告
下一篇:
瑞丽市行政审批局关于瑞丽市第三小学第二教学楼及厕所建设项目建设用地规划许可证批后公布
主办单位:瑞丽市人民政府办公室
滇ICP备13000534号-1
滇公网安备 53310002000503号
联系电话:0692-6995799 政府网站标识码:5331020001 地址:瑞丽市新建路2号 邮编:678600